.
Eladó Lakás 6782 Mórahalom , Mórahalmi ingatlan új építés
LK076283
Eladó
Társasház
32 872 000 Ft
6782 Mórahalom , Mórahalmi ingatlan új építés
1 szoba
32 m²
Tégla
Törlesztőrészlet Ft/hó
THM %
5 megtekintés az elmúlt 7 napban
Leírás
Új építésű, hamarosan költözhető zöldövezeti lakások Mórahalmon, 55 év felettieknek!

Ez a különleges lakópark három, különálló összesen 20 lakásos energiahatékony épületből áll, ahol minden részlet az idősebb korosztály kényelmét, biztonságát és nyugalmát szolgálja.

Az általunk ajánlott megoldás nem idősotthon hanem saját tulajdonú nyugdíjas apartman közvetlenül elérhető szociális ellátás igénybevételének lehetőségével, tehát a befektetett összeg nem vész el.

A társasházakat az úgynevezett nyugdíjasházak mintájára alakítják ki, és ezen funkciót folyamatosan és tartósan biztosítani szeretnék a lakók számára. A beköltözhető alsó korhatár 55 év. A későbbiekben is csak olyan személyek tulajdonába kerülhetnek a lakások, akik ezt az életkort betöltötték.
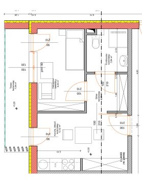
A lakások egy, illetve két szobásak lesznek, minden lakáshoz előtér, konyha és fürdőszoba fog tartozni. A fűtést megújuló energiaforrások kiépítésével biztosítva: termálfűtéssel és talajszondás hőszivattyúval.
A társasházak épületei szerves egységben épülnek a szolgáltató központtal, ezáltal minden lakás részére biztosított lesz a nővérhívó és a központi lift használata valamint a szolgáltató központ által nyújtott egyéb szolgáltatások. Ilyenek pl.: az étkezés, demens nappali ellátás és más, térítés ellenében igénybe vehető szolgáltatások.

Miért jó itt lakást venni?
A szolgáltató központ közösségi terei lehetőséget biztosítanak a társas együttlétek, közösségi programok szervezésére és kapcsolatot jelentenek a város napi életével.

A szociális szolgáltató központ egy épületben található a lakásokkal.
Nővérhívó rendszer bekötve a közvetlenül  Szociális Szolgáltató Központba, Étkeztetésre és egyéb plusz szolgáltatásokra (pl. Fodrászat stb.) van lehetőség. 55 év felettiek részére barátságos, azonos élethelyzetű szomszédok. Akadálymentesített belső terek és közlekedőfelületek
Közösségi terek, parkosított udvar, pihenőpark. Alacsony fenntartási költségek, A+ energiahatékonyság
Biztonság: kamera rendszer, riasztó, tűzriasztó, több ponton záródó ajtók

4 típusú lakás, 32 és 47 m² között, kulcsrakészen, beépített konyhával, minőségi burkolatokkal, zuhanyzóval, terasszal:

Típus       Méret                  Bruttó ár
1. típus    47,78 m²            46.408.000 Ft
2. típus    32,61 m²            31.669.000 Ft
3. típus    39,57 m²            38.434.000 Ft
4. típus    40,50 m²            39.332.000 Ft

A lakásokhoz külön megvásárolható parkolóhelyek elérhetők!
3 rétegű, hő- és hangszigetelt nyílászárók
Hőhőmérséklet-szabályozás, klíma
Beépített konyhabútor (páraelszívó, hűtő, főzőlap)
Kapaszkodókkal ellátott, küszöbmentes zuhanyzó
TV, telefon kiépítve, optikai internet
Intelligens épület felügyelet, energiatakarékos üzemeltetés
A fűtést megújuló energiaforrások kiépítésével biztosítva: termálfűtéssel és talajszondás hőszivattyúval.

A Szociális központban elérhető ellátási szolgáltatások:

Szociális segítés keretében:
A lakókörnyezeti higiénia megtartásában való közreműködés körében:
takarítás a lakás életvitelszerűen használt helyiségeiben (hálószobában, fürdőszobában, konyhában és illemhelyiségben). mosás, vasalás
A háztartási tevékenységben való közreműködés körében: bevásárlás (személyes szükséglet mértékében), segítségnyújtás ételkészítésben és az étkezés előkészítésében, mosogatás, kísérés
Segítségnyújtás veszélyhelyzet kialakulásának megelőzésében és a kialakult veszélyhelyzet elhárításában
Szükség esetén a bentlakásos szociális intézménybe történő beköltözés segítése

Személyi gondozás keretében:
Az ellátást igénybe vevővel segítő kapcsolat kialakítása és fenntartása körében:
információnyújtás, tanácsadás és mentális támogatás családdal, ismerősökkel való kapcsolattartás segítése az egészség megőrzésére irányuló aktív szabadidős tevékenységben való közreműködés ügyintézés az ellátott érdekeinek védelmében

Gondozási és ápolási feladatok körében:
mosdatás, fürdetés, öltöztetés, ágyazás, ágyneműcsere, gyógyszer kiváltása, gyógyszer adagolása, gyógyszerelés monitorozása, vérnyomás és vércukor mérése, hely- és helyzetváltoztatás segítése lakáson belül és kívül, kényelmi és gyógyászati segédeszközök beszerzésében való közreműködés, kényelmi és gyógyászati segédeszközök használatának betanítása, karbantartásában való segítségnyújtás
a háziorvos írásos rendelésén alapuló terápia követése (a tevékenység elvégzéséhez való kompetencia határáig)

A lakópark teljes mértékben parkosított, öntözőrendszerrel ellátott, térvilágítással, pihenőpadokkal és közösségi helyiségekkel. Itt valóban minden adott a békés, biztonságos és élménydús nyugdíjas évekhez.

Elhelyezkedés:
Nyugodt, zöldövezeti környezet.
Közelben: boltok, gyógyszertár, orvosi rendelő, posta és a híres mórahalmi Szent Erzsébet gyógyfürdő!

A lakások kulcsrakészen kerülnek átadásra csak be kell költöznie. Várjuk szeretettel!

Mórahalmon nem csak lakást vásárol hanem nyugalmat, közösséget és biztonságot.
További részletekért, megtekintési szándékával keressen bizalommal!
Mutass többet
Általános adatok
Ingatlan állapota:
6 - Új. ép.
Építés éve:
2025
Emelet:
1
Emeletek száma:
1
Lift:
Hívó
Épület külső állapota:
6 - Új. ép.
Épület belső állapota:
6 - Új. ép.
Fényviszonyok:
Parkolás:
Van
Erkély/Terasz:
Van
Nézet:
Panoráma
Tájolás:
É
Fűtés:
Hőszivattyú,Klíma
Energetikai besorolás:
Nincs megadva
Lakáshitel kalkulátor – Spórolj velünk!
Kalkulálj most, és keresd pénzügyi szakértőinket, akik ingyenes tanácsadással segítenek megtalálni a számodra legjobb megoldást!

Hasonló ingatlanok

6782 Mórahalom

PR064120/LK/23577 | 2 szoba | 62 m²
61 310 700 Ft

6782 Mórahalom Mórahalmon eladó lakások 65 felett

LK049580 | 1 szoba | 41 m²
40 827 000 Ft

6782 Mórahalom Mórahalmi ingatlan új építés

LK043377 | 1 szoba | 41 m²
40 827 000 Ft

6782 Mórahalom Mórahalom 55 felett

LK060500 | 1 szoba | 41 m²
40 827 000 Ft

6782 Mórahalom Mórahalmi ingatlan új építés

LK080125 | 1 szoba | 40 m²
40 279 000 Ft

6782 Mórahalom Mórahalmi ingatlan új építés

LK042171 | 1 szoba | 38 m²
38 434 000 Ft

6782 Mórahalom Mórahalmi ingatlan új építés

LK066027 | 1 szoba | 40 m²
40 279 000 Ft

6782 Mórahalom Mórahalmi ingatlan új építés

LK077395 | 1 szoba | 40 m²
40 279 000 Ft

6782 Mórahalom Mórahalmi ingatlan új építés

LK026619 | 2 szoba | 48 m²
48 172 000 Ft

6782 Mórahalom Mórahalmi ingatlan új építés

LK013047 | 1 szoba | 33 m²
32 872 000 Ft

6782 Mórahalom Mórahalmi ingatlan új építés

LK061590 | 1 szoba | 33 m²
32 872 000 Ft

6782 Mórahalom Mórahalmi ingatlan új építés

LK084521 | 1 szoba | 33 m²
32 872 000 Ft

6782 Mórahalom Mórahalmi ingatlan új építés

LK030058 | 1 szoba | 41 m²
40 827 000 Ft

6782 Mórahalom Mórahalmi ingatlan új építés

LK020959 | 1 szoba | 41 m²
40 827 000 Ft

6782 Mórahalom Mórahalmi ingatlan új építés

LK051917 | 2 szoba | 48 m²
48 172 000 Ft

6782 Mórahalom Mórahalmi ingatlan új építés

LK065021 | 2 szoba | 48 m²
48 172 000 Ft

6782 Mórahalom Mórahalmi ingatlan új építés

LK074352 | 2 szoba | 48 m²
48 172 000 Ft

6782 Mórahalom Mórahalmi ingatlan új építés

LK019450 | 2 szoba | 48 m²
48 172 000 Ft

6782 Mórahalom

PR064120/LK/23568 | 2 szoba | 59 m²
67 795 200 Ft
Nidal Ádám
Briliáns fokozatú értékesítő
Kapcsolatfelvétel
Hívom
Kapcsolatfelvétel
Kérjen egy személyes megtekintést az ingatlanra a Duna House értékesítőjétől
Válassz egy időpontot