Eladásra kínálunk egy új-építésű, hőszivattyúval felszerelt, COMFORT műszaki tartalommal rendelkező, 118 m2-es családi házat Cegléd, Szellő utcában.
A telek mérete 740 m2, az ár pedig a TELEKKEL ÉS TERASSZAL EGYÜTT értendő.
A tervek elkészültek, a kivitelezés idő pedig 10-12 hónap.
A projekt kivitelezői ELŐFINANSZÍROZÁSSAL is megvásárolható (nem kell előre fizetni), tehát mindig az elkészült, átadott ütem után kell fizetni, illetve a kivitelező szerződésben vállalja, hogy ÁR GARANCIÁT vállal az építményre.
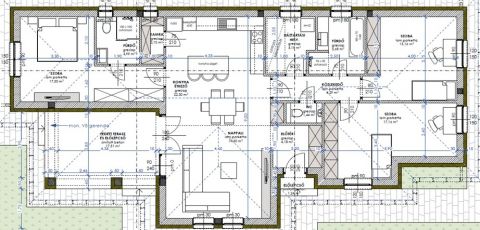
A családi ház nettó alapterülete 118 m2, amely tartalmaz:
5 szobát (amerikai konyha-nappali-étkező + 4 hálószoba);
2 fürdőszobát
háztartási helyiséget
egy kamrát;
és egy előszobát.
Műszaki tartalom:
- Teherhordó falazat: Wienerberger Porotherm Profi 30 X-Therm tégla
- Homlokzati hőszigetelés: 15 cm
- Tetőhéjazat választható: Bramac Római Novo, Leier Toscana vagy Terrán Renova Plus tetőcserép választható színben
- Külső nyílászárók: 3 réteg üvegezésű, prémium Gealan S9000 külső nyílászárók, 44 mm-es melegperemes üvegezéssel
- Válaszfal: Wienerberger Porotherm 10 tégla válaszfal
- Hidegburkolat választható: 8500 Ft / m2
- Melegburkolat választható: 8000 Ft / m2
- Szaniterek választható: (kád, zuhanykabin, csaptelep stb.) 700.000Ft-ig
- Bejárati ajtó választható: Colorplast rátétes intarziás inox betéttel
- Teraszajtó: Dupla szárnyas
- Beltéri ajtó: Borovi Szcília (CPL) választható színben
- Gépészet: Bosch 6000 prémium levegő-víz hőszivattyú vizes padlófűtéssel
Az ár kulcsrakész állapotban történő átadással értendő, konyhabútor és lámpatestek nélkül!
Közművek:
Gáz: utcában
Villany: ingatlanban
Csatorna: ingatlanban
Víz: ingatlanban
Ajánlom mindazoknak, akik Cegléd csendes, új-építésű környezetben szeretnének élni.