.
Eladó Ház 1222 Budapest 22. kerület , Újépítésű ikerház eladó Budatétény, saját utcafronttal
HZ067451
Eladó
Ikerház
Új
160 000 000 Ft
1222 Budapest 22. kerület , Újépítésű ikerház eladó Budatétény, saját utcafronttal
5 szoba
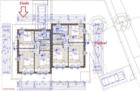
109 m²
519 m² telek
Törlesztőrészlet Ft/hó
THM %
12 megtekintés az elmúlt 7 napban
Leírás
BUDATÉTÉNY, CAMPONÁHOZ KÖZEL, CSENDES, KEDVES UTCÁJÁBAN ELADÓ, A MÉG MEGLÉVŐ IKERFÉL SAJÁT UTCAFRONTOS TELKEN , 109 NÉGYZETMÉTERES : nappali + 4 hálós, duplakomfortos, nagy teraszos HÁZ 2 SZINTEN**** felszíni beállóval!

Az ingatlan alkalmas a 3%-os hitelre, CSOK-ra*** A ház 150 millió Ft. Berendezése eléri majd a 10 millió FT-ot, így a vételár 150 millió Ft.

A legdrágább, 8 cm-es, grafitos Ytong-ból, REFLEX DRYVIT szigeteléssel,épül. 2026. év elején átadás, már nem sokat kell rá várni.

Rejtett redőnytokos elektromos redőnnyel szerelt 3 rétegű üvegezésű, kívül színes, belül fehér nyílászárókkal felszerelt. 

Az épület fűtése 10 KW HŐSZIVATTYÚ , padlófűtéssel és 2 db FANCOIL kiállással.

A szomszédos falak, dupla falak a főfalon lévő betonfödém megszakításával, így a család nyugalmát semmi nem zavarhatja meg!

ILLETÉKMENTESSÉG, ÁLLAMI TÁMOGATÁSÚ HITEL, CSOK, IGÉNYELHETŐ*****

Keressen bizalommal! 
Mutass többet
Általános adatok
Építés éve:
2025
Belső szintek száma:
2
Épület külső állapota:
6 - Új. ép.
Épület belső állapota:
6 - Új. ép.
Fényviszonyok:
Napfényes
Nézet:
Kert/belső kert
Fűtés:
Hőszivattyú
Szerkezet:
Ytong
Energetikai besorolás:
A++
Víz:
Ingatlanban
Gáz:
Utcában
Villany:
Ingatlanban
Csatorna:
Ingatlanban
Lakáshitel kalkulátor – Spórolj velünk!
Kalkulálj most, és keresd pénzügyi szakértőinket, akik ingyenes tanácsadással segítenek megtalálni a számodra legjobb megoldást!

Hasonló ingatlanok

1221 Budapest 22. kerület Budafok legnívósabb részén

HZ049206 | 4 szoba | 191 m²
266 750 000 Ft

1225 Budapest 22. kerület

HZ041747 | 3 szoba | 75 m²
60 000 000 Ft

1224 Budapest 22. kerület

HZ028835 | 2 szoba | 35 m²
45 000 000 Ft

1223 Budapest 22. kerület BUDATÉTÉNYBEN panorámás 4 szobás, ÚJÉPÍTÉSŰ ikerfél DUPLA GARÁZZSAL, extra műszaki tartalommal

HZ089368 | 4 szoba | 184 m²
232 700 000 Ft

1223 Budapest 22. kerület BUDATÉTÉNYBEN panorámás 4 szobás, ÚJÉPÍTÉSŰ ikerfél DUPLA GARÁZZSAL, extra műszaki tartalommal

HZ062577 | 4 szoba | 173 m²
223 600 000 Ft

1224 Budapest 22. kerület

HZ067556 | 4 szoba | 104 m²
119 000 000 Ft

1222 Budapest 22. kerület

IP018352 | 106 m²
199 999 000 Ft

1221 Budapest 22. kerület

HZ073781 | 1 szoba | 44 m²
46 300 000 Ft

1222 Budapest 22. kerület

HZ041438 | 4 szoba | 168 m²
135 000 000 Ft

1222 Budapest 22. kerület Budafok déli részén ÚJ ÉPÍTÉSŰ, nappali+3 háló, dupla garázs

HZ021522 | 4 szoba | 137 m²
172 900 000 Ft

1221 Budapest 22. kerület

HZ028359 | 6 szoba | 216 m²
210 000 000 Ft

1224 Budapest 22. kerület

TK067946 | 5365 m²
74 000 000 Ft

1221 Budapest 22. kerület Ady Endre útról nyíló zsákutca

HZ085296 | 9 szoba | 355 m²
295 000 000 Ft

1222 Budapest 22. kerület AZONNAL KÖLTÖZHETŐ, CSENDES UTCA, MEDENCÉS HÁZ

HZ067069 | 6 szoba | 260 m²
204 900 000 Ft

1222 Budapest 22. kerület Nagytétény

HZ073999 | 6 szoba | 306 m²
229 000 000 Ft

1221 Budapest 22. kerület

H494370 | 8 szoba | 380 m²
249 900 000 Ft

1221 Budapest 22. kerület

HZ093472 | 10 szoba | 370 m²
220 000 000 Ft

1221 Budapest 22. kerület Kálváriahegy utcában csendes 2 generációs ház

HZ092699 | 8 szoba | 327 m²
230 000 000 Ft

1222 Budapest 22. kerület Háros utca közelében 5 szobás újépítésű ingatlan Budafokon

HZ028118 | 5 szoba | 150 m²
184 900 000 Ft

1222 Budapest 22. kerület Háros utcához közel 5 szobás újépítésű ház Budafokon

HZ062206 | 5 szoba | 150 m²
189 900 000 Ft
Pusztai Henriett
Örökös tag értékesítő
Kapcsolatfelvétel
Hívom
Kapcsolatfelvétel
Kérjen egy személyes megtekintést az ingatlanra a Duna House értékesítőjétől
Válassz egy időpontot