.
Eladó Ház 2151 Fót , Csillagdomb
HZ058827
Eladó
Ikerház
Áresés
142 600 000 Ft
2151 Fót , Csillagdomb
4 szoba
132 m²
423 m² telek
Törlesztőrészlet Ft/hó
THM %
12 megtekintés az elmúlt 7 napban
Leírás
Új építésű ikerház ÁLOMOTTHON Fóton Csillagdomb projekt

Átadás: 2026 március
Elhelyezkedés: Fót, Csillagdomb modern, családbarát környezet
Ingatlan típusa: ikerház külön bejárattal és saját telekkel

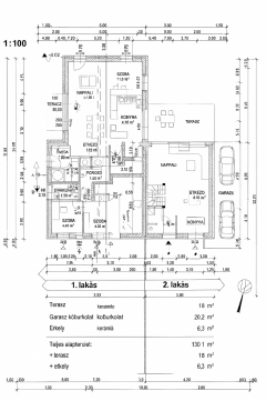
Főbb paraméterek:

Telek: 420 m² saját használatú terület

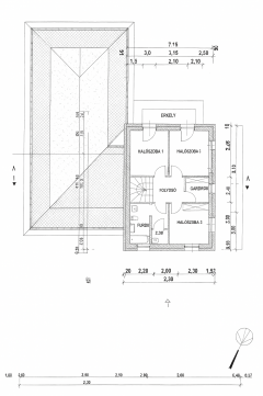
Lakótér: 101,9 m²  jól átgondolt, praktikus elrendezéssel

Gépkocsi-beálló:  28,20 m²
Erkély: 6,3 m2
Terasz: 18 m2

Fűtés-hűtés: hőszivattyú, padlófűtés és mennyezethűtés A+ energiaosztály

Szigetelés: 15 cm homlokzati hőszigetelés

Kialakítás: nappali + 3 hálószoba, két fürdőszoba, külön háztartási helyiség.

Kivitelezés: magas műszaki tartalom, modern anyaghasználat

Környezeti előnyök:

Újonnan kialakított, rendezett utcák, zöldövezet, családias lakókörnyezet

Kiváló megközelíthetőség: Budapest 1520 perc autóval, jó tömegközlekedési kapcsolatok

Iskolák, óvodák, bevásárlási lehetőségek a közelben

Miért érdemes megtekinteni?

Ez az ingatlan a modern komfort és a nyugodt kertvárosi élet tökéletes kombinációja.
Az energiatakarékos megoldásoknak és a minőségi kivitelezésnek köszönhetően hosszú távon is értékálló otthon.

Minden aktuális állami támogatás és hitel igénybe vehető.

Érdeklődés:

További információért és helyszíni megtekintésért keressen bizalommal a megadott elérhetőségen.
Az ár, alaprajz és műszaki dokumentáció kérésre rendelkezésre állnak. Magas fokú hitel tanácsadásban is tudok segíteni teljesen díjmentesen! Hívjon bizalommal!


Mutass többet
Általános adatok
Építés éve:
2026
Belső szintek száma:
2
Épület külső állapota:
6 - Új. ép.
Épület belső állapota:
6 - Új. ép.
Fényviszonyok:
Napfényes
Nézet:
Utca
Fűtés:
Hőszivattyú,Mennyezeti hűtés-fűtés
Szerkezet:
Tégla
Energetikai besorolás:
Nincs megadva
Víz:
Ingatlanban
Gáz:
Ingatlanban
Villany:
Ingatlanban
Csatorna:
Ingatlanban
Lakáshitel kalkulátor – Spórolj velünk!
Kalkulálj most, és keresd pénzügyi szakértőinket, akik ingyenes tanácsadással segítenek megtalálni a számodra legjobb megoldást!

Hasonló ingatlanok

2151 Fót Fóti tó közelében, természetvédelmi övezet mellett!

HZ010518 | 5 szoba | 200 m²
160 000 000 Ft

2151 Fót

HZ013553 | 4 szoba | 97 m²
121 000 000 Ft

2151 Fót

HZ091802 | 4 szoba | 97 m²
124 300 000 Ft

2151 Fót 2151 Fót Balassa Bálint utca 28

HZ017585 | 6 szoba | 244 m²
220 000 000 Ft

2151 Fót Fót

HZ044713 | 3 szoba | 90 m²
63 400 000 Ft

2151 Fót Fótújfalu

HZ078904 | 6 szoba | 190 m²
104 000 000 Ft

2151 Fót Fót

HZ045300 | 5 szoba | 150 m²
155 000 000 Ft

2151 Fót

HZ029410 | 5 szoba | 150 m²
115 500 000 Ft

2151 Fót Fót

HZ023940 | 4 szoba | 140 m²
74 600 000 Ft

2151 Fót Fót

HZ043658 | 6 szoba | 160 m²
180 000 000 Ft

2151 Fót

HZ078161 | 7 szoba | 320 m²
149 900 000 Ft

2151 Fót

HZ047397 | 7 szoba | 600 m²
199 500 000 Ft

2151 Fót Fót

HZ049811 | 6 szoba | 279 m²
112 000 000 Ft

2151 Fót

HZ039250 | 7 szoba | 260 m²
229 000 000 Ft

2151 Fót sárgarigó

HZ095404 | 6 szoba | 581 m²
270 000 000 Ft

2151 Fót Kislag

HZ077417 | 4 szoba | 200 m²
199 900 000 Ft

2151 Fót Somlyó

HZ093556 | 8 szoba | 250 m²
99 000 000 Ft

2151 Fót Kazinczy Ferenc utca

HZ041851 | 4 szoba | 130 m²
124 900 000 Ft

2151 Fót Kalász u

HZ043182 | 5 szoba | 298 m²
149 000 000 Ft

2151 Fót

LK086068 | 3 szoba | 71 m²
75 000 000 Ft
Nagy Orsolya Zsuzsanna
Ezüst fokozatú értékesítő
Kapcsolatfelvétel
Hívom
Kapcsolatfelvétel
Kérjen egy személyes megtekintést az ingatlanra a Duna House értékesítőjétől
Válassz egy időpontot