.
Eladó Ház 2310 Szigetszentmiklós , Hitelezhető ikerház! Csendes környék!
HZ023605
Eladó
Ikerház
Új
Prémium
79 900 000 Ft
2310 Szigetszentmiklós , Hitelezhető ikerház! Csendes környék!
4 szoba
78 m²
500 m² telek
Törlesztőrészlet Ft/hó
THM %
3 megtekintés az elmúlt 7 napban
Leírás
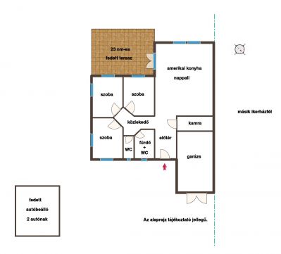
Szigetszentmiklóson, 2008-ban téglából épült szigetelt, nappali +3 hálószobás, 78 m2-es, ikerház,  500 m2-es telekkel, csendes zsákutcában sürgősen eladó!

- 30 cm vastag téglafalazat
- 10 cm szigetelés
- műanyag nyílászárók, redőny, szúnyogháló
- klíma
- fűtött garázs
- gázcirkó fűtés
- összközműves
- fedett terasz

A közelben, buszmegálló, bevásárlási lehetőség, óvoda, iskola minden elérhető, amire a hétköznapokban szüksége lehet, éttermek, csónakbérlés és kirándulási lehetőség várja az érdeklődőket, közel a városhoz, de mégis modern, vidékies hangulatban.
Ez az, amit keresett? Ne habozzon, a hét bármely napján elérhető vagyok telefonon és e-mailen is! Jöjjön, nézzük meg együtt és szeressen bele!

Amennyiben ajánlatom megfelelne az elvárásainak, de nem rendelkezik a kiválasztott ingatlan vételárával, a Credipass hitelügyintéző munkatársai díjmentesen biztosítják a legkedvezőbb, személyre szabott hitelkonstrukciót a kedves vevők számára.
Mutass többet
Általános adatok
Építés éve:
2008
Belső szintek száma:
1
Épület külső állapota:
5 - Nagyon jó
Épület belső állapota:
5 - Nagyon jó
Fényviszonyok:
Nézet:
Udvar
Fűtés:
Gáz cirkó,Klíma
Szerkezet:
Tégla
Energetikai besorolás:
Nincs megadva
Víz:
Ingatlanban
Gáz:
Ingatlanban
Villany:
Ingatlanban
Csatorna:
Ingatlanban
Lakáshitel kalkulátor – Spórolj velünk!
Kalkulálj most, és keresd pénzügyi szakértőinket, akik ingyenes tanácsadással segítenek megtalálni a számodra legjobb megoldást!

Hasonló ingatlanok

2310 Szigetszentmiklós Szigetszentmiklós Közel a tavakhoz

HZ093570 | 3 szoba | 62 m²
31 500 000 Ft

2310 Szigetszentmiklós

HZ070964 | 2 szoba | 80 m²
66 000 000 Ft

2310 Szigetszentmiklós

HZ022607 | 3 szoba | 35 m²
16 990 000 Ft

2310 Szigetszentmiklós

HZ041415 | 1 szoba | 30 m²
15 900 000 Ft

2310 Szigetszentmiklós

HZ024387 | 1 szoba | 20 m²
14 900 000 Ft

2310 Szigetszentmiklós Központ

HZ043306 | 6 szoba | 147 m²
79 000 000 Ft

2310 Szigetszentmiklós Szszm. Dr. Lengyel Lajos u. környéke

HZ037039 | 4 szoba | 112 m²
94 900 000 Ft

2310 Szigetszentmiklós

HZ019593 | 3 szoba | 50 m²
22 900 000 Ft

2310 Szigetszentmiklós Boglya u.

HZ050698 | 3 szoba | 63 m²
59 900 000 Ft

2310 Szigetszentmiklós A Duna közvetlen közelében - Buckán

HZ012393 | 7 szoba | 134 m²
89 900 000 Ft

2310 Szigetszentmiklós Csendes, központi helyen,tele lehetőséggel

HZ046632 | 5 szoba | 150 m²
74 500 000 Ft

2310 Szigetszentmiklós Minőségi családi ház Szigetszentmiklóson

HZ010406 | 4 szoba | 164 m²
149 000 000 Ft

2310 Szigetszentmiklós

HZ038038 | 5 szoba | 200 m²
94 990 000 Ft

2310 Szigetszentmiklós Csendes utca, HÉV közeli, 2 generációs !

HZ062736 | 9 szoba | 250 m²
149 990 000 Ft

2310 Szigetszentmiklós Általános iskola mellett

HZ046244 | 5 szoba | 275 m²
149 000 000 Ft

2310 Szigetszentmiklós

HZ083008 | 6 szoba | 226 m²
139 990 000 Ft

2310 Szigetszentmiklós Hangulatos utcában, 286 nm-es, 3 szintes ház

HZ047974 | 7 szoba | 286 m²
129 900 000 Ft

2310 Szigetszentmiklós M0 közelében 2 generációnak, vállalkozása üzemeltetésére is.

HZ077199 | 4 szoba | 175 m²
99 900 000 Ft

2310 Szigetszentmiklós Aszfaltozott utcában minőségi otthon Szigetszentmiklóson

HZ072769 | 5 szoba | 136 m²
136 000 000 Ft

2310 Szigetszentmiklós Lakóparki környezetben!!

HZ012610 | 5 szoba | 111 m²
104 900 000 Ft
Kristóf Beáta
Platina fokozatú csoportvezető
Kapcsolatfelvétel
Hívom
Kapcsolatfelvétel
Kérjen egy személyes megtekintést az ingatlanra a Duna House értékesítőjétől
Válassz egy időpontot