.
Eladó Ház 8174 Balatonkenese
H512330
Eladó
Családi ház
Prémium
590 000 000 Ft
8174 Balatonkenese
20 szoba
570 m²
1658 m² telek
Törlesztőrészlet Ft/hó
THM %
2 megtekintés az elmúlt 7 napban
Leírás
Balatonkenese központjától pár száz méterre, a korábban Máytás-Udvar néven méltán ismertté vált PANZIÓ/VENDÉGHÁZ kivül-belül megújult köntösben várja új tulajdonosát, üzemeltetőjét!

Az 90-es évek közepén élpült eredeti épület 2024-2025-ben teljes felújításon, korszerűsítésen és bővítésen esett át, ahogy azt a képek is érzékeltetik.
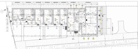
Ennek köszönhetően 9 db KÜLÖN BEJÁRATOS, ÖNÁLLÓ és TELJES ÉRTÉKŰ apartman került magas színvonalon kialakításra, ami különösen vonzóvá és jól kiadhatóvá teszi ezt a vendégházat. A legkisebb 42, a legnagyobb lakrész 85 m2-es, így akár fiatal párok vagy 4-5 fős családok, kisebb baráti társaságok is megtalálják maguknak az ideális méretű szállást.

Minden apartmanhoz tartozik 1-1 db udvari parkolóhely, így kényelmesen, pár lépésre a bejárattól biztonságban tudhatják a vendégek autóikat.
Az épület alatt hatalmas pincerész is található, ahol minden apartmanhoz külön tároló és egy közösségi helyiség is kialakításra került, ami akár egy fitness terem, akár egy szaunatér, vagy akár a gyerekeknek egy "dühöngő" megvalósítását is lehetővé teszi.

A közel 800 m2-es udvar, illetve parkosított kertrész pedig bőséges teret ad a kerti sporttevékenségekhez, grillpartikhoz, napozáshoz igény szerint.

Persze ez az ingatlan nem csak panzió/vendégházként, de Vállalati/Céges Üdüllőként is kiváló választás lehet!

Ha szeretne többet és részletesebben megtudni, például a felújítás műszaki tartalmáról, vagy élőben is megtekintené ezt a ritka adottságú ingatlant, keressen bátran a megadott elérhetőségeken, akár hétvégén is!
Mutass többet
Általános adatok
Építés éve:
1995
Belső szintek száma:
Nincs megadva
Épület külső állapota:
5 - Nagyon jó
Épület belső állapota:
5 - Nagyon jó
Fényviszonyok:
Nincs megadva
Nézet:
Nincs megadva
Fűtés:
Szerkezet:
Nincs megadva
Energetikai besorolás:
Nincs megadva
Víz:
Telken belül
Gáz:
Telken belül
Villany:
Telken belül
Csatorna:
Telken belül
Lakáshitel kalkulátor – Spórolj velünk!
Kalkulálj most, és keresd pénzügyi szakértőinket, akik ingyenes tanácsadással segítenek megtalálni a számodra legjobb megoldást!

Hasonló ingatlanok

8174 Balatonkenese Szuperpanorámás új, önálló családi ház a Soós-hegyen

HZ061859 | 7 szoba | 272 m²
600 000 000 Ft

8174 Balatonkenese Vízparti PANORÁMÁS, saját stéges 2 szintes, 3 szobás ház, 1095nm telken!

HZ079804 | 3 szoba | 98 m²
499 000 000 Ft

8174 Balatonkenese Balatonkenese

HZ059427 | 2 szoba | 70 m²
75 000 000 Ft

8174 Balatonkenese Balatonkenese Fő utca 21

HZ017267 | 2 szoba | 60 m²
72 400 000 Ft

8174 Balatonkenese

H502685 | 5 szoba | 219 m²
445 000 000 Ft

8174 Balatonkenese

HZ080156 | 10 szoba | 200 m²
299 990 000 Ft

8174 Balatonkenese

H499128 | 5 szoba | 138 m²
98 000 000 Ft

8174 Balatonkenese

NY012965 | 5 szoba | 75 m²
82 500 000 Ft

8174 Balatonkenese

H510299 | 3 szoba | 80 m²
88 000 000 Ft

8174 Balatonkenese

H511140 | 3 szoba | 100 m²
62 700 000 Ft

8174 Balatonkenese állandó lakhatásra is

HZ076464 | 4 szoba | 140 m²
170 000 000 Ft

8174 Balatonkenese

NY012717 | 5 szoba | 130 m²
99 900 000 Ft

8174 Balatonkenese

HZ039157 | 3 szoba | 75 m²
59 500 000 Ft

8174 Balatonkenese Balatonkenese Kaica pékség előtt a központban

TK087129 | 4499 m²
62 000 000 Ft

8174 Balatonkenese

TK049305 | 1000 m²
55 000 000 Ft
Rádóczy-Csekő Dominika
Értékesítő
Kapcsolatfelvétel
Hívom
Kapcsolatfelvétel
Kérjen egy személyes megtekintést az ingatlanra a Duna House értékesítőjétől
Válassz egy időpontot