.
Eladó Ház 2525 Bajna
H507251
Eladó
Családi ház
Prémium
99 500 000 Ft
2525 Bajna
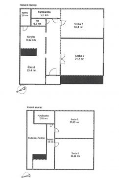
4 szoba
156 m²
1020 m² telek
Törlesztőrészlet Ft/hó
THM %
2 megtekintés az elmúlt 7 napban
Leírás
BAJNA településen négy szobás, jó állapotú családi ház nagy méretű műhellyel, garázzsal eladó!

TELEK:

- 1020 nm
- rendezett, körbe kerített
-Utcafrontja esztétikus megjelenésű kovácsoltvas kerítés és autóbejáró,
- A kert füvesített és fás környezetű,
- a telek hátsó részében pedig egy fedett kültéri medence került kialakításra.


CSALÁDI HÁZ:

- 1977-ben épült, dupla összkomfortos,
- 4 nagy méretű szoba, étkező, külön konyha, szintenként fürdőszoba
- hagyományos B25-ös téglaépítéssel épített, mely betonsáv alapokon nyugszik.
- Tetőszerkezete betonkoszorúval készült,
- belső kétszintes épület,
-megemelt parapet magassággal, fafödémmel kialakított, cserépfedéses nyeregtető.
- Az ingatlan karbantartott, rendezett
-1985-ben a főépület melléképületekkel bővült, különálló műhelyek, tárolók kaptak helyet és ezen épületek a térképvázlaton is szerepelnek.
-2014 és 2020 között mind az épület, mind a külső környezet folyamatos felújításon esett át.
- 2014 után új burkolatok kerültek kialakításra,
- az új villanybojler mellett új gázkazán és vegyestüzelésű kazán is beüzemelésre került,
- megújult a teljes víz-szennyvíz és gáz hálózat,
- víztisztító rendszer került beépítésre,
- 5cm külső dryvit szigetelés került az épületre, mely vakolás után színezést is kapott,
-a tetőt szigetelték, melynek keretében a födémet 15 cm-es kőzet gyapot szigeteléssel látták el.
Az épület minden helyisége teljesen újak a nyílászárók, melyek redőnyökkel és szúnyoghálóval is felszereltek.
-ingatlan áramellátása lakossági 3*15 Amper, valamint 380 V ipari áramellátással is rendelkezik.
- A főépület alatt szuterén szint található, amely összesen 92 nm-en terül el.
- Ezen a szinten található az utca fronti garázs, mely egy autó parkolására kialakított,
-valamint itt található a kazán helyiség, a fűtő berendezések, úgy, mint gázkazán, vegyes tüzelésűkazán és a teljes gépészet,
- három további tároló helyiség, valamint, a pincét is erről a szintről tudjuk megközelíteni.
- Az épület víz-csatorna-áram-gáz közüzemi szolgáltatókon keresztül biztosított.
- Parkolás a ház előtt is, illetve az ingatlanon belül további két garázsban és autóbeállón keresztül is biztosított


Melléképület:

- 1985-ben a főépület mellé, melléképület került felépítésre.
- Ezt a 156 nm-es épületet tulajdonosai asztalos műhelyként használták.
- Ez az épület egy fő épületi egységből és két táróló, valamint egy garázs helyiségekből áll.
- Rendelkezik ipari árammal,
- alja betonozott, világítóablakokkal, nyílászárókkal felszerelt.
Toló és nyíló ajtók is beépítésre kerültek.

Az ingatlanon található valamennyi építmény a térképvázlaton szerepel.

HITELEZHETŐ!

- Az ingatlan aszfaltozott úton, a település összes irányából jól megközelíthető,
- 10 perc sétára található a vasútállomás és a távolsági buszmegálló,
- boltok, orvosi rendelő és egyéb kiszolgáló egységek séta távolságban .
Mutass többet
Általános adatok
Építés éve:
1975
Belső szintek száma:
Nincs megadva
Épület külső állapota:
4 - Jó
Épület belső állapota:
4 - Jó
Fényviszonyok:
Nincs megadva
Nézet:
Nincs megadva
Fűtés:
Gáz cirkó
Szerkezet:
Tégla
Energetikai besorolás:
Nincs megadva
Víz:
Telken belül
Gáz:
Telken belül
Villany:
Telken belül
Csatorna:
Telken belül
Lakáshitel kalkulátor – Spórolj velünk!
Kalkulálj most, és keresd pénzügyi szakértőinket, akik ingyenes tanácsadással segítenek megtalálni a számodra legjobb megoldást!

Hasonló ingatlanok

2525 Bajna

HZ079120 | 3 szoba | 100 m²
47 000 000 Ft

2525 Bajna

HZ042784 | 3 szoba | 130 m²
31 900 000 Ft

2525 Bajna

HZ084048 | 5 szoba | 90 m²
29 900 000 Ft

2525 Bajna

HZ010076 | 5 szoba | 120 m²
22 990 000 Ft

2525 Bajna

HZ073818 | 2 szoba | 107 m²
45 900 000 Ft

2525 Bajna Ady Endre utca

HZ058216 | 4 szoba | 120 m²
40 000 000 Ft

2525 Bajna

HZ064399 | 3 szoba | 100 m²
29 900 000 Ft

2525 Bajna

HZ086974 | 3 szoba | 70 m²
39 900 000 Ft

2525 Bajna Szilvakúti részen

ME075926 | 1 szoba | 37 m²
6 900 000 Ft
Rigler Barbara
Ezüst fokozatú csoportvezető
Kapcsolatfelvétel
Hívom
Kapcsolatfelvétel
Kérjen egy személyes megtekintést az ingatlanra a Duna House értékesítőjétől
Válassz egy időpontot