.
Eladó Ház 9026 Győr , RÉVFALU SZÍVÉBEN
HZ096104
Eladó
Családi ház
290 000 000 Ft
9026 Győr , RÉVFALU SZÍVÉBEN
5 szoba
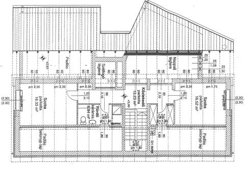
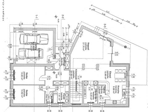
230 m²
1057 m² telek
Törlesztőrészlet Ft/hó
THM %
5 megtekintés az elmúlt 7 napban
Leírás
RÉVFALU SZÍVÉBEN EGY VALÓDI RITKASÁG VÁLT ELÉRHETŐVÉ.

A város egyik legjobb pontján, több mint 1 000 négyzetméteres, teljesen intim, gyönyörűen parkosított kertben áll ez a kortalan stílusú, kiemelkedő minőségben megépített otthon. Az a fajta ingatlan, ahol egyszerre áll össze minden: a hely, az építészeti igényesség, a funkcionalitás és az a megfoghatatlan harmónia, amit kevés ház tud.

Révfalu önmagában is Győr legkeresettebb városrésze, de ez a környék még ezen belül is kiemelkedő. A szomszédos ingatlanok mind hasonlóan magas minőséget képviselnek, stabil, rendezett, értékálló lakókörnyezetet teremtve. Ez az egyik legnagyobb erőssége, olyan utcában van, ahol az ingatlanállomány egységesen felső kategóriás.

A nagy belmagasságú nappali és a galériás tér olyan tágasságot ad, ami Révfaluban is ritkaság. A ház minden szeglete fényes, jól szervezett, és természetes átmenetet teremt a kert felé, mintha a belső és külső terek együtt lélegeznének. A karakteres építészeti részletek és a korát meghaladó anyaghasználat időtálló minőséget hoznak. A ház minden elemén látszik, hogy hosszú távra, kompromisszummentesen készült.

A praktikum ugyanolyan erős, mint az esztétika: 4 kényelmes hálószoba, két fürdő, kétállásos garázs, fedett terasz, és egy mintaszerűen karbantartott, teljes intimitást adó kert. A telek mérete pont ideális. Elegendő a tér és a nyugalom, de könnyen kezelhető. Ritka előny ebben a kategóriában, hogy az ingatlan szinte azonnal birtokba vehető, ami külön értéket jelent azok számára, akik nem szeretnének hónapokat várni egy ilyen szintű otthonra.

Ez nem egyszerűen egy eladó ingatlan, hanem egy ritka alkalom, hogy Győrben olyan adottságokkal rendelkező, valódi karaktert, minőséget és átgondolt építészeti szemléletet képviselő otthonod legyen, amire mindig is vágytál. Révfalunak ezen a kiemelt részén évek óta nem került piacra hasonló adottságú ház, és a környék értékállósága miatt nem is várható gyakran.

Pont jó méret. Pont jó helyen. Pont az, amit keresel, ha nem éred be az átlagossal.

Ha ilyen házat keresel, most kell lépned!

HÍVJ! MUTATOM!
Mutass többet
Általános adatok
Építés éve:
2000
Belső szintek száma:
2
Épület külső állapota:
5 - Nagyon jó
Épület belső állapota:
5 - Nagyon jó
Fényviszonyok:
Napfényes
Nézet:
Kert/belső kert
Fűtés:
Gáz cirkó
Szerkezet:
Tégla
Energetikai besorolás:
Nincs megadva
Víz:
Ingatlanban
Gáz:
Ingatlanban
Villany:
Ingatlanban
Csatorna:
Ingatlanban
Lakáshitel kalkulátor – Spórolj velünk!
Kalkulálj most, és keresd pénzügyi szakértőinket, akik ingyenes tanácsadással segítenek megtalálni a számodra legjobb megoldást!

Hasonló ingatlanok

9025 Győr 200 nm ház és 200 nm üzlet

HZ478840 | 3 szoba | 400 m²
95 000 000 Ft

9026 Győr Udvarházi hangulat Révfaluban

HZ074094 | 5 szoba | 155 m²
279 000 000 Ft

9028 Győr ZÖLDÖVEZETI 2 SZINTES LAKÁS SAJÁT PIHENŐKERTTEL!

LK073327 | 4 szoba | 103 m²
94 900 000 Ft

9011 Győr

HZ093996 | 4 szoba | 73 m²
63 000 000 Ft

9027 Győr

HZ093354 | 5 szoba | 207 m²
149 800 000 Ft

9027 Győr Győr Szélső utca

HZ087778 | 4 szoba | 92 m²
89 900 000 Ft

9025 Győr Duna center közelében

HZ067265 | 3 szoba | 80 m²
59 900 000 Ft

9026 Győr Győr Révfalu részén, eladó újépítésű ikerház!

HZ081590 | 5 szoba | 103 m²
159 113 240 Ft

9026 Győr Győr Révfalu részén, eladó újépítésű ikerház!

HZ083983 | 4 szoba | 155 m²
160 692 685 Ft

9027 Győr

HZ095908 | 4 szoba | 122 m²
104 500 000 Ft

9012 Győr Sorompó utca

HZ014667 | 6 szoba | 107 m²
134 900 000 Ft

9028 Győr

HZ087874 | 6 szoba | 285 m²
207 945 500 Ft

9024 Győr

VL069762 | 4 szoba | 520 m²
392 350 000 Ft

9025 Győr GYŐR - ÚJVÁROS RENDEZETT UTCÁJÁBAN CSALÁDI HÁZ KIS KERTTEL

HZ077972 | 3 szoba | 92 m²
64 900 000 Ft

9025 Győr

LK068876 | 3 szoba | 118 m²
62 000 000 Ft

9025 Győr

LK057099 | 2 szoba | 90 m²
57 000 000 Ft

9025 Győr

HZ045391 | 6 szoba | 208 m²
99 800 000 Ft

9030 Győr Győr Nagybácsa árnyas utcájában

HZ067721 | 4 szoba | 228 m²
183 500 000 Ft

9028 Győr SZABADHEGYI OTTHON MEDENCÉVEL, SPORTPÁLYÁVAL, GARÁZZSAL!

HZ055871 | 5 szoba | 117 m²
149 900 000 Ft

9011 Győr

H503115 | 1 szoba | 30 m²
23 990 000 Ft
Bella Csaba
Briliáns fokozatú értékesítő
Kapcsolatfelvétel
Hívom
Kapcsolatfelvétel
Kérjen egy személyes megtekintést az ingatlanra a Duna House értékesítőjétől
Válassz egy időpontot