.
Eladó Ház 2030 Érd , Érd Parkváros újépítésű társasházi lakás
HZ089226
Eladó
Sorház
Áresés
99 900 000 Ft
2030 Érd , Érd Parkváros újépítésű társasházi lakás
4 szoba
101 m²
631 m² telek
Törlesztőrészlet Ft/hó
THM %
11 megtekintés az elmúlt 7 napban
Leírás
KULCSRAKÉSZ ÁLLAPOZBAN.
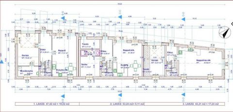
Megvételre kínálunk Érd parkvárosi részén, egy háromlakásos sorházban lévő, bruttó 133.35 nm-es, kétszintes lakást.
A lakás földszintjén, nappali, konyha, étkező, háztartási helység, külön wc, előszoba és garázs található. Az emeleten két szoba, fürdőszoba közlekedő és egy intim terasz lett kialakítva.
Az energiaellátást napelemrendszer (előkészítve), a fűtést (padlófűtés) és a melegvizet egy 8 Kw-os, levegős hőszivattyú biztosítja. A fűtés opcionálisan, szobánkénti hőfokszabályzással lehet ellátni. A fűtésrendszerhez igény estén napkollektor kapcsolható.
A lakás hűtésére klíma vagy hőszivattyúra csatlakoztatható fancoil telepíthető. A riasztórendszer, napelem és napkollektor kialakítása a vevő igényeinek megfelelően kerül sor.
Az ablakok redőnnyel kerülnek beépítésre, elektromos mozgatásra is kialakítva. Az elektromos hálózat kialakítása lehetővé teszi 'okos otthon' rendszer telepítését is.
A ház 80%- os készenléti állapotban van, az elektromos hálózat és az alapvezetékek beszerelése már elkészült. A burkolatokat és a szanitereket a saját elképzeléseknek és igényeknek megfelelően lehet kiválasztani. 
A tervek szerint a ház lakásai, közel nulla külső energiaigényre vonatkozó követelménynek megfelelően készültek.
Igény szerint a műszaki leírás rendelkezésre áll. A ház társasházként kerül átadásra.
Tömegközlekedés a közelben, bevásárlási lehetőségek, séta távolságban vannak. Iskola, óvoda a közelben biztonságosan elérhető.
Minden állami támogatás igényelhető! CSOK stb.
Érd városa, ahol az ingatlan található, Pest megye vonzó települése, ami kitűnő életminőséget kínál lakóinak. Az itt élők mindennapjait a kiváló infrastruktúra, számos vásárlási és szabadidős lehetőség, valamint a zöld övezetek közelsége teszi kényelmessé. Érd közvetlen kapcsolata Budapesttel is előnyt jelent, hiszen így a fővárosi munkahelyek, oktatási intézmények és kulturális események is könnyen elérhetőek. Az ingatlan így nemcsak otthonként, hanem befektetésként is kiváló választás lehet.



Az épület és a környék is a modern életvitelhez szükséges minden igényt kielégít, az ingatlan befektetési értéke pedig a jövőben várhatóan tovább növekszik mások által is keresett, dinamikusan fejlődő környéken.



Az ingatlan környezete ideális választás azok számára, akik a városi élet nyüzsgését keresik, mégis értékelik a nyugodt, csendes környéket. A közeli közlekedési csomópontok gyors és kényelmes hozzáférést biztosítanak Budapest minden részéhez.

A lakás tágas belső terekkel rendelkezik, melyek első osztályú kivitelezésről tanúskodnak, így az otthon melegét és kényelmét nyújtva leendő lakóinak. A modern technológiák alkalmazása nemcsak a lakókényelmet szolgálja, de hosszú távon jelentős megtakarítást is lehetővé tesz a rezsiköltségeken.


Mutass többet
Általános adatok
Építés éve:
2025
Belső szintek száma:
2
Épület külső állapota:
6 - Új. ép.
Épület belső állapota:
6 - Új. ép.
Fényviszonyok:
Napfényes
Nézet:
Utca
Fűtés:
Hőszivattyú,Napelem
Szerkezet:
Tégla
Energetikai besorolás:
AA++
Víz:
Ingatlanban
Gáz:
Utcában
Villany:
Ingatlanban
Csatorna:
Ingatlanban
Lakáshitel kalkulátor – Spórolj velünk!
Kalkulálj most, és keresd pénzügyi szakértőinket, akik ingyenes tanácsadással segítenek megtalálni a számodra legjobb megoldást!

Hasonló ingatlanok

2030 Érd

HZ069674 | 5 szoba | 191 m²
165 000 000 Ft

2030 Érd Ürmös utca vonzáskörzetében

HZ096338 | 5 szoba | 120 m²
140 000 000 Ft

2030 Érd Kis ház nagy telekkel

HZ037377 | 1 szoba | 30 m²
37 900 000 Ft

2030 Érd

HZ092801 | 5 szoba | 165 m²
159 900 000 Ft

2030 Érd Érd Visegrádi utca - Fundoklia

HZ059042 | 2 szoba | 60 m²
57 000 000 Ft

2030 Érd Nappali+2 szobás 135nm családi ház, 398nm telken

HZ010114 | 3 szoba | 135 m²
119 000 000 Ft

2030 Érd 2030 Érd, Parkváros újépítésű társasházi lakás.

LK076027 | 3 szoba | 108 m²
115 000 000 Ft

2030 Érd Postástelepen, 2 lakásos családi ház eladó!

HZ074210 | 5 szoba | 140 m²
125 000 000 Ft

2030 Érd szövő

HZ016185 | 4 szoba | 186 m²
133 700 000 Ft

2030 Érd Faneves utca

HZ086923 | 5 szoba | 152 m²
79 900 000 Ft

2030 Érd

HZ468196 | 7 szoba | 600 m²
169 000 000 Ft

2030 Érd Női neves utcában telek

TK021431 | 1369 m²
37 900 000 Ft

2030 Érd Ritka lehetőség Érden! Építési telek eladó!

TK027538 | 1618 m²
69 900 000 Ft

2030 Érd Diósdi út közelében

HZ021941 | 3 szoba | 236 m²
99 990 000 Ft

2030 Érd Tárnoki út közelében

HZ034672 | 3 szoba | 110 m²
69 900 000 Ft

2030 Érd Kodály Zoltán 25.

HZ074204 | 1 szoba | 180 m²
149 000 000 Ft

2030 Érd

HZ045409 | 1 szoba | 180 m²
149 000 000 Ft

2030 Érd Bajcsy közelében

HZ087376 | 7 szoba | 250 m²
126 000 000 Ft

2030 Érd Lőcsei út közelében

HZ075182 | 6 szoba | 140 m²
110 000 000 Ft

2030 Érd

HZ498145 | 3 szoba | 184 m²
300 000 000 Ft
Lukács Tibor Géza
Briliáns fokozatú értékesítő
Kapcsolatfelvétel
Hívom
Kapcsolatfelvétel
Kérjen egy személyes megtekintést az ingatlanra a Duna House értékesítőjétől
Válassz egy időpontot