.
Eladó Ház 3232 Gyöngyös , Mátrafüreden jó álapotú 381 nm-es többgenerációs családi ház
HZ022715
Eladó
Családi ház
Prémium
166 000 000 Ft
3232 Gyöngyös , Mátrafüreden jó álapotú 381 nm-es többgenerációs családi ház
9 szoba
381 m²
1032 m² telek
Törlesztőrészlet Ft/hó
THM %
8 megtekintés az elmúlt 7 napban
Leírás
Kivételes lehetőség Mátrafüreden többgenerációs családi ház vagy befektetés egyben!

Eladó egy kiváló adottságokkal rendelkező, 1031 m²-es telken fekvő családi ház Mátrafüred egyik nyugodt, természetközeli részén.

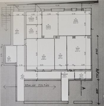
Az ingatlan 381 nm nettó alapterülel rendelkezik ami három szinten helyezkedik el (pince + földszint + emelet), és jelenleg két teljesen különálló lakrészre van kialakítva, amelyek külön mérőórákkal rendelkeznek. Ez ideális választássá teszi akár kétgenerációs együttéléshez, akár befektetési célokra.

A ház:

jó állapotú, folyamatosan karbantartott
rugalmasan alakítható, akár további értéknövelés is lehetséges
a két lakrész külön is hasznosítható vagy értékesíthető

A tágas telek és a háromszintes kialakítás számos lehetőséget rejt magában:
apartmanozás, vendégház kialakítása, hosszú- vagy rövid távú kiadás, illetve saját, kényelmes otthon kialakítása egyaránt megvalósítható.

Mátrafüred kiemelten népszerű turisztikai célpont, a Mátra kapuja:

friss hegyi levegő
túraútvonalak, természeti látnivalók közelsége
fejlődő infrastruktúra, üzletek és szolgáltatások a közelben

Ez az ingatlan tökéletes választás mindazok számára, akik természetközeli életre vágynak, de nem szeretnének lemondani a befektetési potenciálról sem.

Ne hagyja ki ezt a sokoldalú lehetőséget ritka adottságok egy helyen!
Mutass többet
Általános adatok
Építés éve:
1990
Belső szintek száma:
3
Épület külső állapota:
4 - Jó
Épület belső állapota:
5 - Nagyon jó
Fényviszonyok:
Napfényes
Nézet:
Kert/belső kert
Fűtés:
Gáz cirkó
Szerkezet:
Tégla
Energetikai besorolás:
Nincs megadva
Víz:
Ingatlanban
Gáz:
Ingatlanban
Villany:
Ingatlanban
Csatorna:
Ingatlanban
Lakáshitel kalkulátor – Spórolj velünk!
Kalkulálj most, és keresd pénzügyi szakértőinket, akik ingyenes tanácsadással segítenek megtalálni a számodra legjobb megoldást!

Hasonló ingatlanok

Szabó Balázs
Briliáns fokozatú értékesítő
Kapcsolatfelvétel
Hívom
Kapcsolatfelvétel
Kérjen egy személyes megtekintést az ingatlanra a Duna House értékesítőjétől
Válassz egy időpontot